2088! 这个吉利的邮编号让它成为广东富豪最爱! 已被新州官方认证风水最好!
很多中国人在买房之前都会选择坐南朝北的房子,虽然不知道具体是什么原因,但是听说是因为风水好。
中国人相信风水好的房子会对自己的人生有帮助,尤其是广东人。无论移民到哪个国家,广东人都会去找风水最好的地方落户。
华人大量涌入澳洲是在淘金潮,那时候几乎都是广东人。后来他们在澳洲赚到第一桶金,变成土豪,开始在这里落地生根。
于是,就有了我们熟知的华人富豪区北悉尼,而其中的面向悉尼海港的Mosman脱颖而出,成为了广东富豪的最爱。
原因简单粗暴,Mosman的邮编号是2088。
没错,一个象征着发财的邮编号,就是那么直接的理由。
澳洲本土的媒体曾经出过一份对悉尼区号的报告《悉尼最吉祥的句号》,综合区号以及周边环境因素,Mosman就是其中一个“官方认证”风水最好的区域。
根据风水的理论,山与水之间的关系非常地重要。
若以悉尼为例,则是山和海港之间的互动关系,最好的城区房产应当背山面水,而Mosman区内广东人的房子基本都是这样,而且还是朝北向的。
广东人喜欢Mosman当然不仅仅是风水那么简单。
Mosman是悉尼最有名的地区之一,这里历史悠久,随处可见文化遗址;同时又临近悉尼海港,是一个半岛城区,北面、东面和南面都被内港湾簇拥着,全区还有四个海滩,沿岸而建的不少住宅都享有优美海景。
Mosman面积8.7平方公里,距离悉尼中央商业区(CBD)东北面大约8公里(大约16分钟车程),距离老牌华人区Chatswood约9公里(约18分钟车程),居住在这个区的很多华人都会开车到Chatswood购物。
Mosman有相当多世袭传承的房产,来自英国及欧洲的早期移民,不仅留给后代贵族家风及教养,还留下世代传承的豪宅。
这里的生活风格不仅仅是阳光海滩,还有由Millitary Road展开的活色生香的咖啡馆、餐馆、英式下午茶、家居时尚店铺等等。
无论在此出生成长的年轻人,还是新移民,多会选择长居此地,它的独特魅力也吸引了越来越多外围成功人士热切希望搬进此区。
Mosman总人口大约2.85万人,就业人口占了1.46万人,当中39.5是专业人士,明显高于大悉尼区的26.3%比率;另外24%在职者担任管理阶层,较大悉尼区比率高出差不多一倍。
2016 年的人口普查结果指出,Mosman的个人每周收入中位数为1,295元,较大悉尼区的719元高出80%。
Mosman共有七间学校,包括五间小学、一间中小学和一间中学,学术成绩俱十分出色。以ICSEA水平去看,几间学校的指数均达到1,160 点以上,远超过全国平均的1,000点。
五间小学里,其中三间是公立学校,两间是私校,ICSEA指数最高的小学是私校Mosman Church of England Preparatory School,此校位于Shadforth Street,全校有329名学生,ICSEA指数到1,205点。
这样也就直接解释了为什么这个区的房价一直居高不下,但华人仍愿意在这里投资。
Mosman可以算是悉尼楼市的定心针,几乎所有在此投资了物业的买家从未失望过,因为它十几年来一直稳健上行,从没大起大落过。
因为它自成体系和章法,不太受到整体市场行情干扰,楼市整体下行时,它自顾稳定增长;楼市整体上行时,它水涨船高从没落下。
下图左为悉尼楼市10年成长曲线,可以看到几次大的起落痕迹,图右为同一时期Mosman成长曲线,一直稳健上行,从容不迫。
下图是来自REA网站的楼市供需数据,Mosman每套在售房产每月的平均网络访问量是1236,大大高于新洲平均访问量817。
其中一个有趣的原因,是大家都喜欢欣赏Mosman这个区的豪宅,时常就点进来看看土豪家长什么样。
现在一个绝佳的机会
让你享受这一尊贵高尚的滨水生活方式
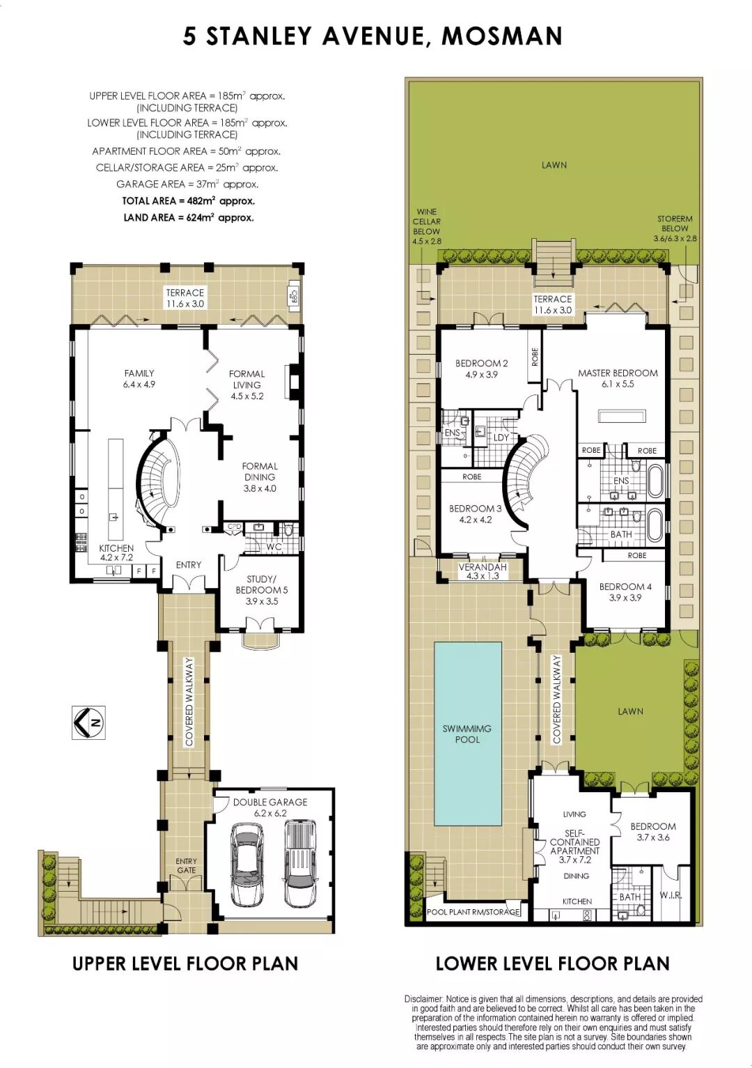
5 Stanley Avenue的一座6房豪宅
目前正由著名的苏富比豪华物业代理公司公开出售
这是一套位于Balmoral山坡,由名师设计的现代奢华精品宅邸,住户能在高处将Manly海滩至Balmoral海滩的开阔美景尽收眼底。
作为典型的Balmoral山坡住宅,设计师用柔软的中性色调勾勒出与海岸风景融为一体的优美外观。而步入室内,创意的布局和宏伟的生活空间真的令人叹为观止。开阔的空间让整座豪宅光线充足,绝大多数房间都可观赏极致水景。
楼上室内连接着宽敞露台
楼下有度假式泳池
豪宅带有美景草坪
池边小屋带有厨房、起居室,睡房和浴室
正规起居室和饭厅可观180度Balmoral美景
家庭房,隐蔽式家庭影院,定制家具
2个标准厨房和3洗碗机
Miele &Gaggenau厨具,整体式冰箱
现代主厨房带大理石台面
酒柜,制冰机,加热盘
13米大理石台面衔接嵌入式餐桌
主人房带套间和露台,观美景,淋浴带地热
第二睡房和客人套间,石台面浴室,私人露台
家庭办公室带私密阳台,5睡房都有室外区
超大洗衣房,大理石台面,不锈钢水池和储藏室
池边小屋带开放式起居室和饭厅
度假式9.5米恒温咸水泳池铺有玻璃瓷砖
多个露台,宽敞室外娱乐区,2独立草坪
自动双上锁车库,储藏室,地下储藏室,酒窖
绿水系统,带RG6 & Cat5线缆
整栋房屋都带地热
中央空调,氛围灯,警报
对讲机,环绕音响
实木卷帘门,定制艺术挂架
高档木材,石材和进口装潢
户型图
开放参观周三 11:00am – 11:30am周六 10:00am – 10:30am
销售方式
请出示购买意向
联系中介
Lulu Pallier
0405 537 668
Spencer Sun
0425 339 696
添加微信请识别下方二维码

